904P Emergency Pull Station Installation Instructions
| • Example of Single language label • Exemple d’étiquette unilingue • Ejemplo de etiqueta en unidioma | • Example of Dual language label • Exemple d’étiquette bilingue • Ejemplo de etiqueta en dos idioma |
Labels and Mounting 2. Flip up the clear cover to apply the "Pull" and "Lift Cover" labels to the blue surface as shown. 3. Mount over a standard surface or mortise electrical utility box (supplied by others). | Étiquettes et montage 2. Retourner le couvercle transparent pour apposer les étiquettes "Tirez" et "Soulevez 3. Procéder au montage sur une surface standard ou une boîte électrique tout usage à mortaise (fourni par un tiers). | Etiquetas y su aplicación 2. Levante la cubierta transparente y aplique las etiquetas "Jalar" y "Levante la cubierta" en la superficie azul como se muestra. 3. Aplique sobre una superficie normal o sobre una caja de utilidad eléctrica (suplida por otros). |
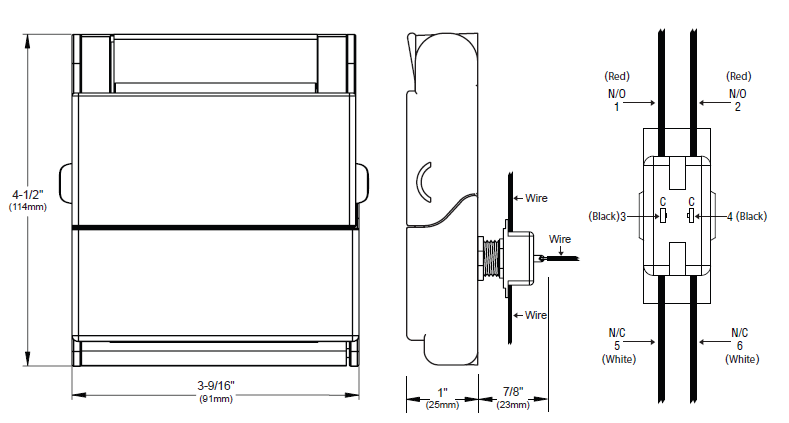
Electrical Features and Connections• Momentary Action Switch held closed • DPDT configuration • 3A @ 125VAC switch rating • Available in blue only • With station in closed position: | Caractéristiques et raccordements électriques• Touche de mise en marche momentanée demeurant fermée • Configuration bipolaire à deux directions • Capacité nominale: 3 A à 125 CVA • Disponible en bleu seulement • Avec poste en position fermée: | Beneficios Eléctricos & conexiones• Interruptor de acción momentánea en posición cerrada • Configuración DPDT • 3A @ 125VAC. Clasificación del interruptor • Disponible solo en azul • Estación en posición cerrada: |
NOTE: Specifications are subject to change without notice.
REMARQUE: les spécifications peuvent être modifiées sans préavis.
NOTA: Especificaciones sujetos a cambios sin previo aviso.